Современный отель в горах Алтая

Трехэтажный отель на берегу озера с видом на горы. На первом этаже расположены: ресепшн и зона ожидания, ресторан с баром, комната хранения инвентаря, технические помещения и номера. На втором и третьем этажах — только номера для гостей. В номерном фонде было типизировано три вида номеров: стандарт, комфорт и люкс.
Горы, дикий, будто замерзший и покрытый снегом камень стен, дерево натурального цвета с плетенными теплыми светильниками, контрастный потолок с освещение как ночное небо с падающими звездами, красная линия судьбы идет через весь отель, как соединение сердца и мира вокруг .
Зона ресепшена встречает гостей сразу у входа мягкой волной света и динамикой линий перегородки. Напротив мягкая зона ожидания. Гости могут пройти в ресторан или посетить бар.








Номер Стандарт
Номера Стандарт светлые, нейтрального цвета с акцентом красной линией и динамики падающих звезд.

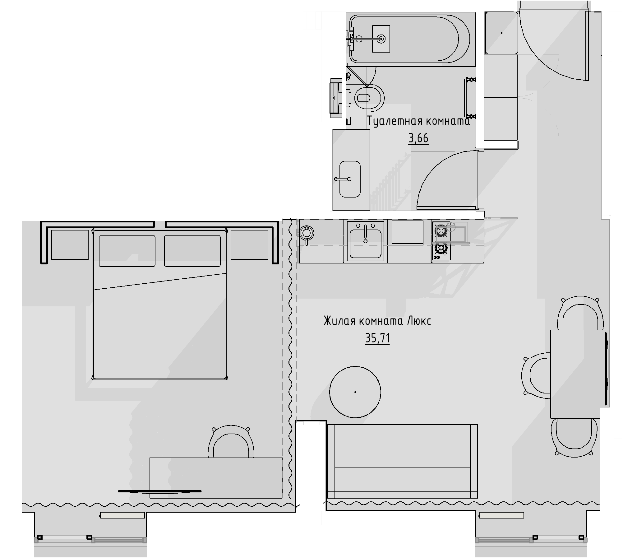
Номер Люкс
Номера люкс очень теплые и обволакивающие за счет использования натурального дерева в отделке, плетенных светильников и мебели, мягких тканей. Здесь красный цвет становится более теплым и приглушенным, что дает ощущение сердечности пространства.















